Description

Summary
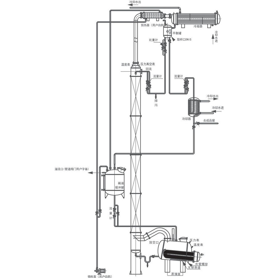
The equipment is designed for reclaiming methanol, whose fillings is made under the stainless steel impact with high reclaiming rate and 99%
of purity. moreover, it can be applicable for the reclaiming of ethanol or other solvent. in order to attain the high purity, the effective height of tower is required to 1Om.the reclaiming system consists of high-level tank, heating autoclave, tower body, condensator, preheator (prepared by client), gas-liquid pipe, rotor flow meter and so on. the quality of contact materials is made of
stainless steel 304 as shown in technical flow chart.


Reviews
There are no reviews yet.